Komplettbad Typ D 1, Badgröße 200 x 200 cm
Komplettbad Typ D 2, Badgröße 252 x 182 cm
Komplettbad Typ D 3, Badgröße 213,5 x 192 cm
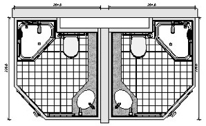
Komplettbad Typ D 4, Badgröße 226 x 204 cm






Komplettbad Typ D 1, Badgröße 200 x 200 cm
Komplettbad Typ D 2, Badgröße 252 x 182 cm
Komplettbad Typ D 3, Badgröße 213,5 x 192 cm
Komplettbad Typ D 4, Badgröße 226 x 204 cm